Baugrundstück mit Baugenehmigung: EFH mit Carport in Top-Lage von Augsburg-Hochzoll Süd
Eckdaten
- Art Baugrund für Ein- / Zweifamilienhäuser
- Lage Hopfenseeweg 16
86163 Augsburg - Kaufpreis 389.000,00 €
- Grundstück ca. 270 m²
- Bezugstermin sofort
- Bebaubar nach Nachbarbebauung
- Erschließung Voll erschlossen
- Kurzfristig bebaubar ja
- Immobilien-ID 58
- Provision 2,38% inkl. Mehrwertsteuer inkl. MwSt.
Immobilie
Kein Grundstück und kein Einfamilienhaus von der Stange — sondern eine durchdachte, wertbeständige Bauvision mit Mehrwert.
Wohnbaugrundstück mit genehmigtem Neubauprojekt in Augsburg – Hochzoll Süd
Hopfenseeweg 12, 86163 Augsburg | Flur-Nr. 2994/270 | Gemarkung Hochzoll
Grundstück und baurechtliche Situation:
Das hier angebotene vollerschlossene Grundstück mit einer Fläche von ca. 270 m² liegt in begehrter Wohnlage von Augsburg-Hochzoll Süd. Für das Grundstück liegt bereits eine rechtskräftige Baugenehmigung für die Errichtung eines modernen Einfamilienhauses mit Carport vor!
Bauvorhaben im Überblick:
– Geplantes Bauobjekt: Einfamilienhaus mit Carport
– Gesamte Wohnfläche: ca. 145 m²
– Bauweise: KG, EG, OG, Flachdach mit statisch möglicher Dachterrassennutzung
– Genehmigte Nutzung: Einliegerwohnung oder Büronutzung im Kellergeschoss mit separatem Außenzugang möglich
– Bauvorbereitet: kein Altbestand vorhanden – sofort bebaubar
– Nachhaltigkeit: Dach kann mit PV-Anlage ausgestattet und begrünt werden für optimierte Ökobilanz und längere Lebensdauer
Zusammenfassung:
Das Grundstück bietet mit seiner baugenehmigten Planung und der hervorragenden Mikrolage eine außerordentlich attraktive Investitions- und Bauchance.
Die flexible Nutzung (Einfamilienhaus + optionale Einliegerwohnung/Büro), die ökologische Bauweise (begrüntes Dach), die sofortige Bebaubarkeit und die exzellente Infrastruktur im direkten Umfeld heben dieses Angebot deutlich vom Marktstandard ab.
Fazit: Ein hochinteressantes Projekt für Familien, Selbstständige oder Kapitalanleger, die in einem der gefragtesten Stadt-teile Augsburgs nachhaltig investieren möchten.
Lage
Hochzoll Süd zählt zu den gefragtesten und familienfreundlichsten Wohnlagen im Stadtgebiet Augsburg. Die Kombination aus hervorragender Infrastruktur, naturnaher Umgebung und optimaler Verkehrsanbindung macht diesen Standort besonders attraktiv für Eigennutzer und Kapitalanleger.
Entfernungen zu wichtigen Standortfaktoren (fußläufig bzw. per Rad):
Bahnhof Augsburg-Hochzoll: ca. 950 m (ca. 12 Gehminuten) → direkte Anbindung an Augsburg Hbf und München
Kuhsee & Naherholungsgebiet Lechauen: ca. 750 m (ca. 10 Gehminuten) → perfekte Erholung vor der Haustür
Apotheke Hochzoll Süd (Werdenfelser Apotheke): ca. 220 m (ca. 3 Gehminuten)
Grundschule Hochzoll Süd: ca. 450 m (ca. 6 Gehminuten)
Kindergarten: ca. 500 m (ca. 7 Gehminuten)
Realschule und Gymnasium: ca. 1.200 m (ca. 5 Min. per Fahrrad)
Supermarkt (REWE / Netto): ca. 350 m (ca. 4 Gehminuten)
Ärztezentrum Hochzoll Süd: ca. 600 m (ca. 8 Gehminuten)
Tram- & Bus-Haltestelle: ca. 300 m → direkte Verbindung in die Innenstadt
Weitere Standortvorteile:
Ruhige Wohnstraße ohne Durchgangsverkehr
Sehr gute Anbindung an die B17, A8 sowie die Augsburger Innenstadt
Hoher Freizeitwert durch unmittelbare Nähe zu Lech, Kuhsee und Siebentischwald
Zukunftssichere Lage mit positiver Wertentwicklung
Bebaubarkeit
1. Objektüberblick
Grundstücksfläche: ca. 270 m² (Flur 2994/270, Gemarkung Hochzoll)
Bauvorhaben: Neubau eines Einfamilienhauses mit Carport
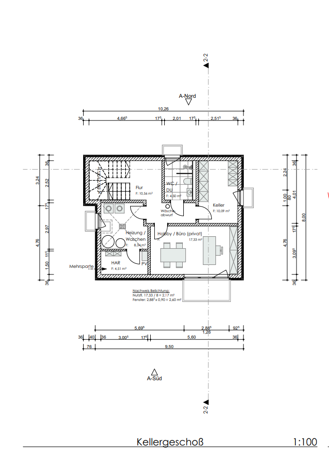
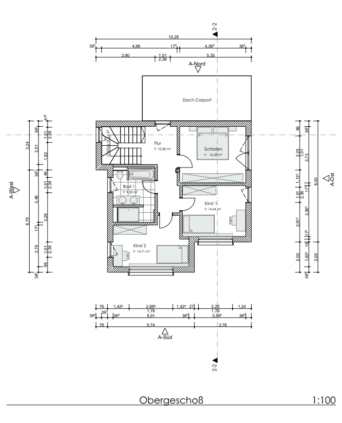
Wohnfläche gesamt: ca. 145 m² (KG • EG • OG • flachdachfähig)
Einliegerwohnung/Büronutzung: Kellerbereich zur separaten Nutzung genehmigt
Status: Vollerschlossen, genehmigte Baugenehmigung vorliegend, keine Altlasten, sofort bebaubar
Lösungskern: Eine schlüsselfertige Projektgrundlage ohne Verzögerungsrisiko durch Altbestände oder ausstehende Genehmigungen. Sie können sofort los bauen!
2. Baurechtliche Eckdaten & technische Parameter
Kennzahl Wert
Grundflächenzahl I (GRZ I) 0,33 (89,94 m²/270,15 m²)
– EFH-Grundfläche 78,46 m² (10,26 × 3,24 + 9,50 × 4,76)
– Terrasse 11,48 m² (5,74 × 2,00)
Grundflächenzahl II (GRZ II) 0,08 (41,99 m²/270,15 m²/2)
– Carport 21,24 m² (7,20 × 2,95)
– Zufahrt 20,75 m²
Geschossflächenzahl (GFZ) 0,62 (168,40 m²/270,15 m²)
– EG & OG je 78,46 m² je 33,24 m² + 45,22 m²
– OG-Terrasse 11,48 m²
Umbauter Raum Wohnhaus 662,07 m³ (KG 247,94 m³; EG 233,82 m³; OG 180,31 m³)
Umbauter Raum Carport 26,55 m³
2.1 Baugenehmigung & Planunterlagen
Architektenplanung inkl. Eingabeplan und vollständigem Entwässerungskonzept
Flachdachkonstruktion: statisch für Dachterrasse ausgelegt, Vegetationsschicht möglich
Nachhaltigkeitsfeatures: extensiv begrüntes Dach zur Verbesserung der Ökobilanz, sommerlicher Wärmeschutz, Rückhalt von Regenwasser, Lärmschutz und erhöhter Dämmwert + PV- oder Solaranlage
2.2 Nutzungsflexibilität
Einliegerwohnung/Büro im Untergeschoss mit gesondertem Außenzugang, ideal für Home-Office oder Vermietung
Stiller Stellplatz genehmigt + zweiter Außenstellplatz umsetzbar
Erschließung
1. Verkehrliche Anbindung & Zuführung
– Straßenanbindung: Das Grundstück grenzt direkt an die öffentliche Fahrbahn – Hopfenseeweg. Die vorhandene Zufahrt ist genehmigt und endet am Carport, wodurch eine barrierefreie Erschließung per PKW sichergestellt ist. Die Neugestaltung der Zufahrt erfolgt gemäß dem Außenanlagenplan mit einer befestigten Fläche von 20,75 m².
– Fuß- und Radwege: Ein vorhandener Gehweg entlang der Straßenkante ermöglicht einen sicheren Fußgängerverkehr. Die Anbindung ans städtische Radwegenetz erfolgt unmittelbar über den Hopfenseeweg.
2. Technische Erschließung
Erschließungsart Status & Anschlussbeschreibung
Wasser-Anschluss an die öffentliche Trinkwasserversorgung in der Straßenmitte, vorgesehener Hausanschluss im Eingabeplan.
Abwasser Vollständige Kanalerschließung: Schacht „Straße“ mit OK FFB +0,16 m (482,98 m ü NN) und Einleitung in den Mischwasserkanal (D=482,92 m; S=479,44 m).
Entwässerungskonzept liegt im Genehmigung Satz bei.
Regenwasser Versickerung über begrünbares Flachdach in Kombination mit Retentionsflächen im Außenbereich, gemäß Entwässerungsplan des Architekten.
Strom Anschluss an das städtische Niederspannungsnetz (230 V / 400 V), Hausanschlussraum geplant im Kellergeschoss neben Haustechnikbereich (F 8,34 m²)
Primär: moderne Wärmepumpe, optional Gas/Heizung Anschluss für Gasheizung vorgesehen, Anschlussraum integriert in Haustechnikbereich im KG. Alternativ raumluftunabhängiger Brennwertkessel.
Telekommunikation Glasfaser- bzw. Breitbandanschluss über Telekommunikation Hauptleitung in der Straßenmitte, Hausübergabepunkt im Technikraum.
3. Entwässerungsdetails & Gefälle
Gefälle und Höhenlagen: Der Hausanschlussschacht Straße weist eine Oberkante FFB von +0,16 m bzw. 482,98 m ü NN, das Roh Schachtsohle (S) liegt bei 479,44 m NN (D = 482,92 m)
Terrassen- und Carport-Entwässerung: Nach Vorgaben des Außenanlagenplans wird die Terrasse (5,74 × 2,00 m) über punktuelle Rinnen an den Geländeabfluss angeschlossen. Eine leichte Gefälleführung von ca. 2 % sorgt für einen sicheren Wasserabfluss.
4. Außenanlagen & Grundstücksbegrenzung
Einfriedung: Gemäß Plan sind natürliche Hecken (Thuja, Liguster) und Sichtschutzwände (H 2,00 m) entlang der Grundstücksgrenzen vorgesehen.
Mülltonnenstellplatz: Ein zentraler Sammelplatz nahe dem Eingang garantiert eine ordnungsgemäße Entsorgung.
Bepflanzung & Grünflächen: Vorgesehene Pflanzungen (Ziergehölze, Rasenflächen) sind im Freiflächengestaltungsplan dargestellt und unterstützen die Versickerung von Niederschlagswasser.
Fazit:
Die vollständige Erschließung – von der wasserseitigen Anbindung über Kanalisation bis hin zu Strom-, Gas- und Telekommunikation – ist bereits im Planungsumfang berücksichtigt und genehmigt. Die befestigten Zufahrtsflächen und das entwässerungstechnische Konzept gewährleisten eine reibungslose und normgerechte Realisierung des Neubaus. Somit entsteht eine projektsichere Grundlage für den Start der Bauarbeiten ohne zusätzliche Erschließungskosten oder Verzögerungsrisiken.
Sonstiges
Wir freuen uns auf Ihre Anfrage. Gerne lassen wir Ihnen weitere Informationen zu dieser Immobilie zukommen. Füllen Sie hierzu bitte das Kontaktformular vollständig aus.
Damit wir Ihnen sofort das Exposé zuschicken können, benötigen wir nach der Neuregelung im Verbraucherrecht Ihre Zustimmung.
Für Fragen und zur Vereinbarung eines Besichtigungstermins stehe ich Ihnen höchstpersönlich zur Verfügung.
Herr Simon Koch unter der Mobil-Nr. 0179-8740077
Da die Maklerprovision selbstverständlich nur dann anfällt, wenn Sie die Immobilie auch tatsächlich kaufen, bleibt Ihre Anfrage insoweit unverbindlich und kostenfrei.
Alle Angaben sind ohne Gewähr und basieren ausschließlich auf Angaben des Auftraggebers. Eine Haftung für Vollständigkeit, Richtigkeit und Aktualität kann nicht übernommen wer- den. Zwischenverkauf vorbehalten.
Sie möchten auch Ihre Immobilie verkaufen oder vermieten? Wir sind Ihr kompetenter Immobilienmakler im Raum Augsburg, Füssen, Garmisch-Partenkirchen, Landsberg am Lech und München.
Sie haben Fragen? Wir beraten Sie gerne!
Sie erreichen uns telefonisch, per Email oder über das Kontaktformular. Gerne beantworten wir im Vorfeld alle relevanten Fragen. Wir freuen uns auf Ihre Nachricht.
Herzlichen Dank für Ihre Anfrage.
Wir werden diese so schnell wie möglich bearbeiten.










